• Work
  • Details
About
Contact
Mancia Design Collaborative Mancia Design Collaborative
  • Work
  • Details
About
Contact

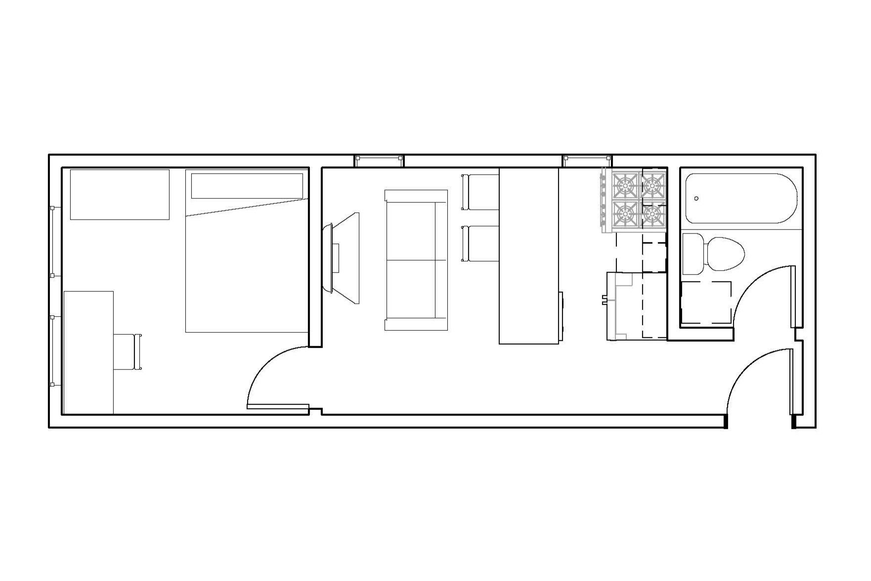
40th Street Apartment Renovation

Schematic Design through Construction Documentation Programs used: Revit / AutoCAD / Photoshop