• Work
  • Details
About
Contact
Mancia Design Collaborative Mancia Design Collaborative
  • Work
  • Details
About
Contact

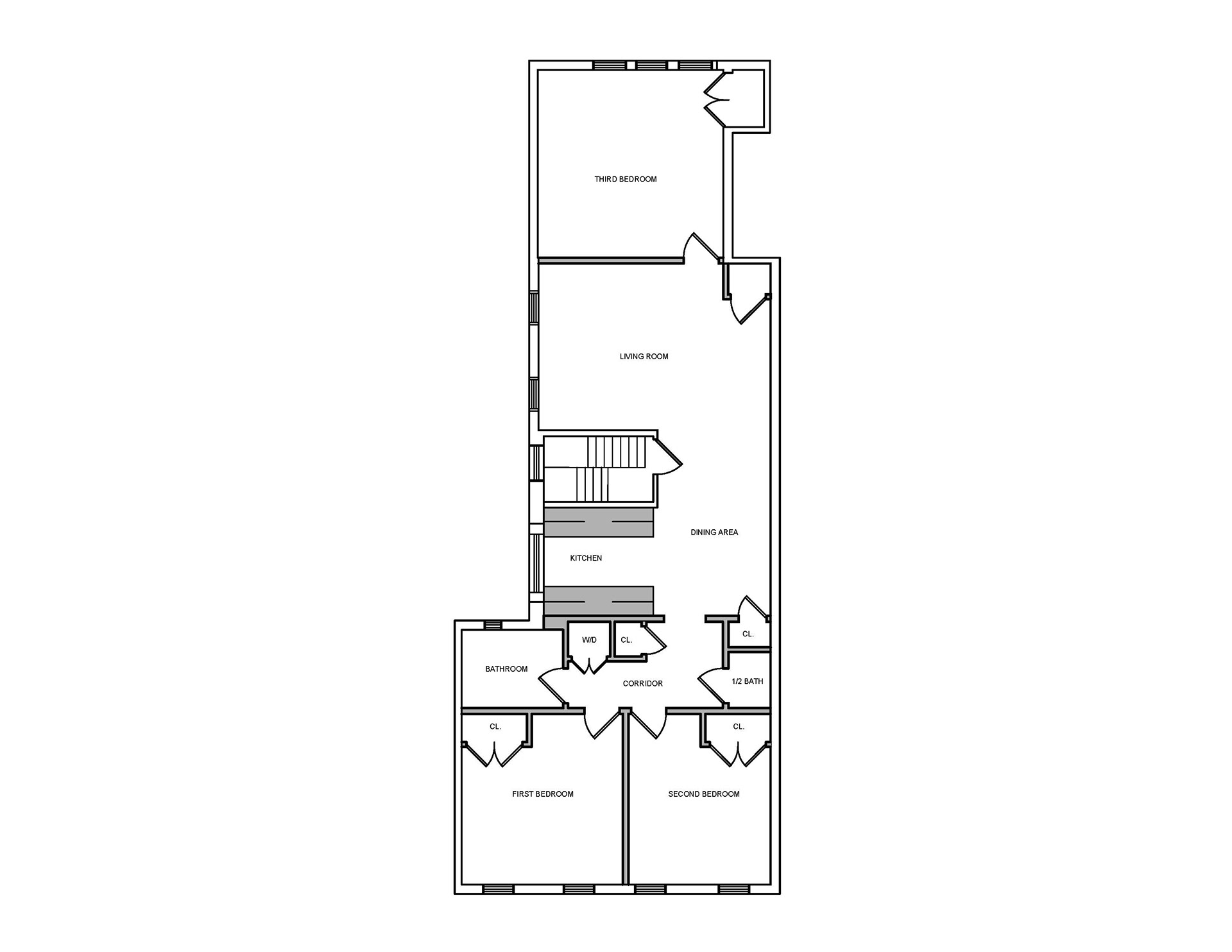
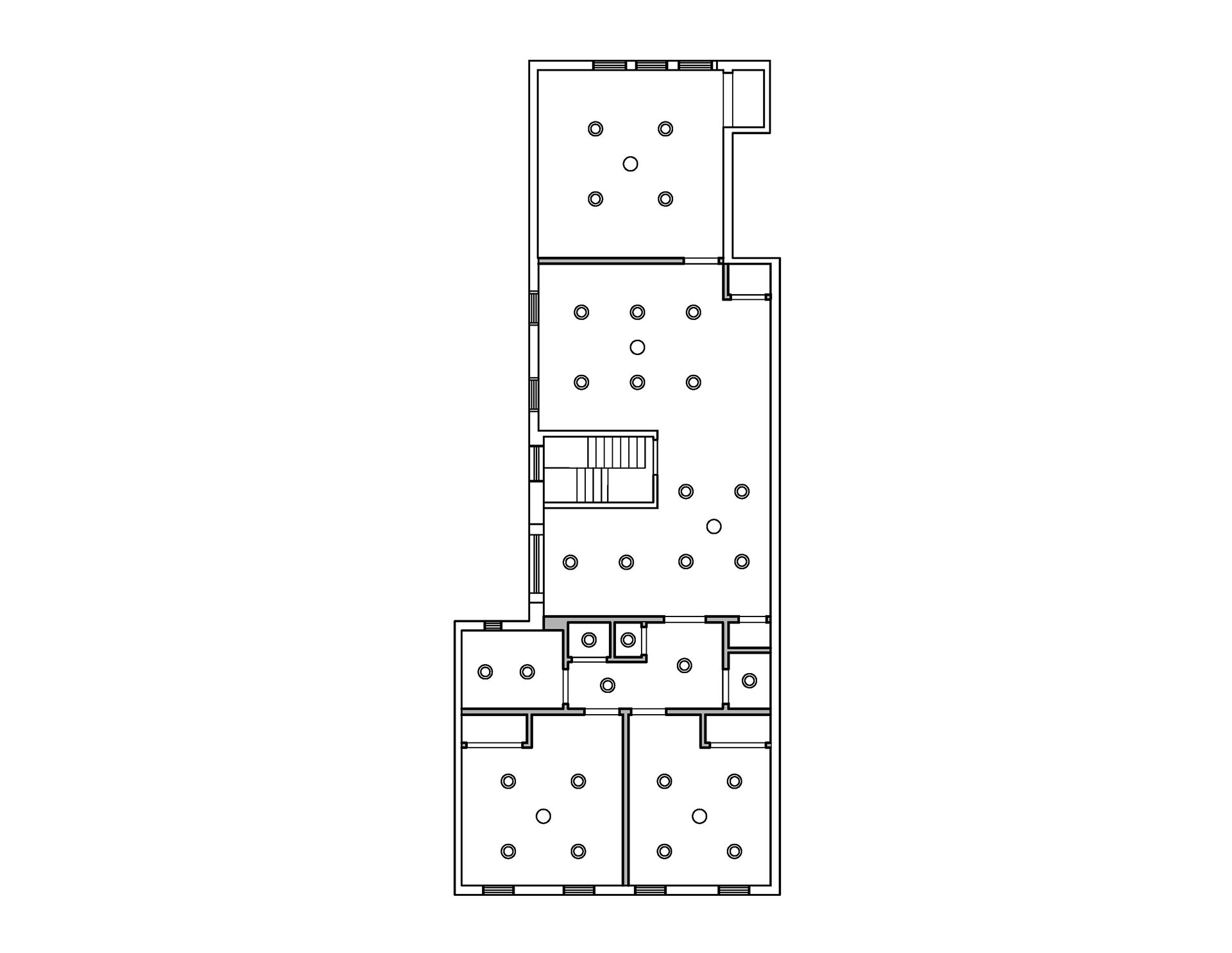
Brooklyn Townhouse Renovation

Schematic Design through Construction Administration (in Progress) Programs Used: Revit / AutoCAD / Photoshop / InDesign