• Work
  • Details
About
Contact
Mancia Design Collaborative Mancia Design Collaborative
  • Work
  • Details
About
Contact

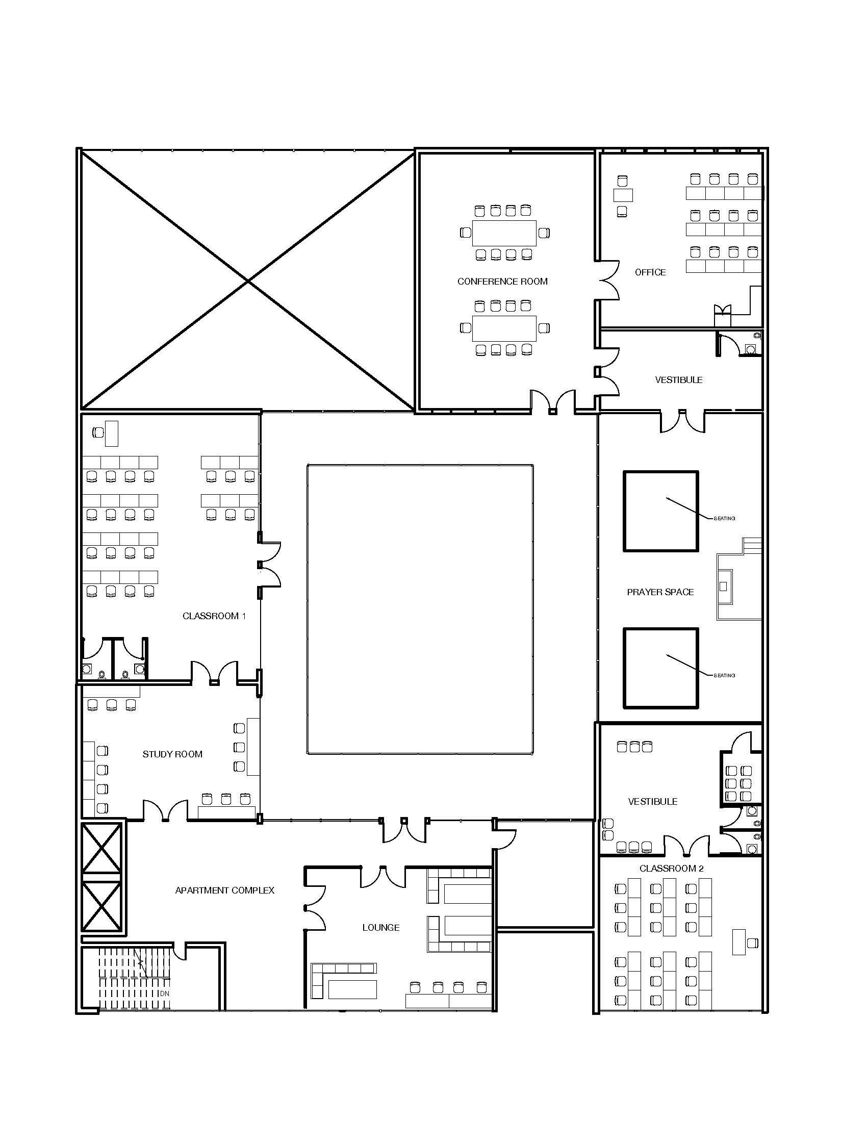
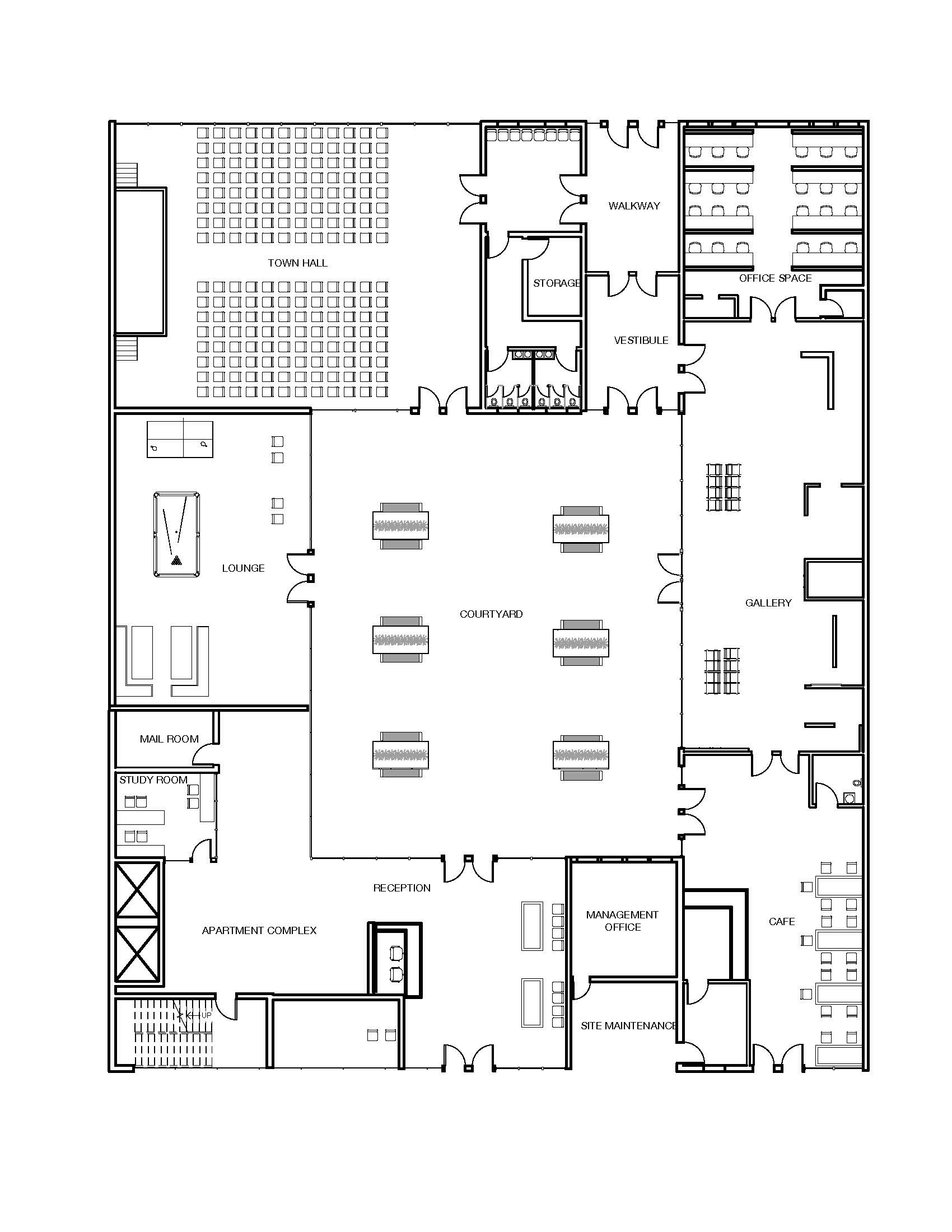
Culture Complex

Conceptual Design for Cultural Center in Northern Liberties Programs Used: AutoCAD, Rhino, Revit, InDesign, Photoshop