• Work
  • Details
About
Contact
Mancia Design Collaborative Mancia Design Collaborative
  • Work
  • Details
About
Contact

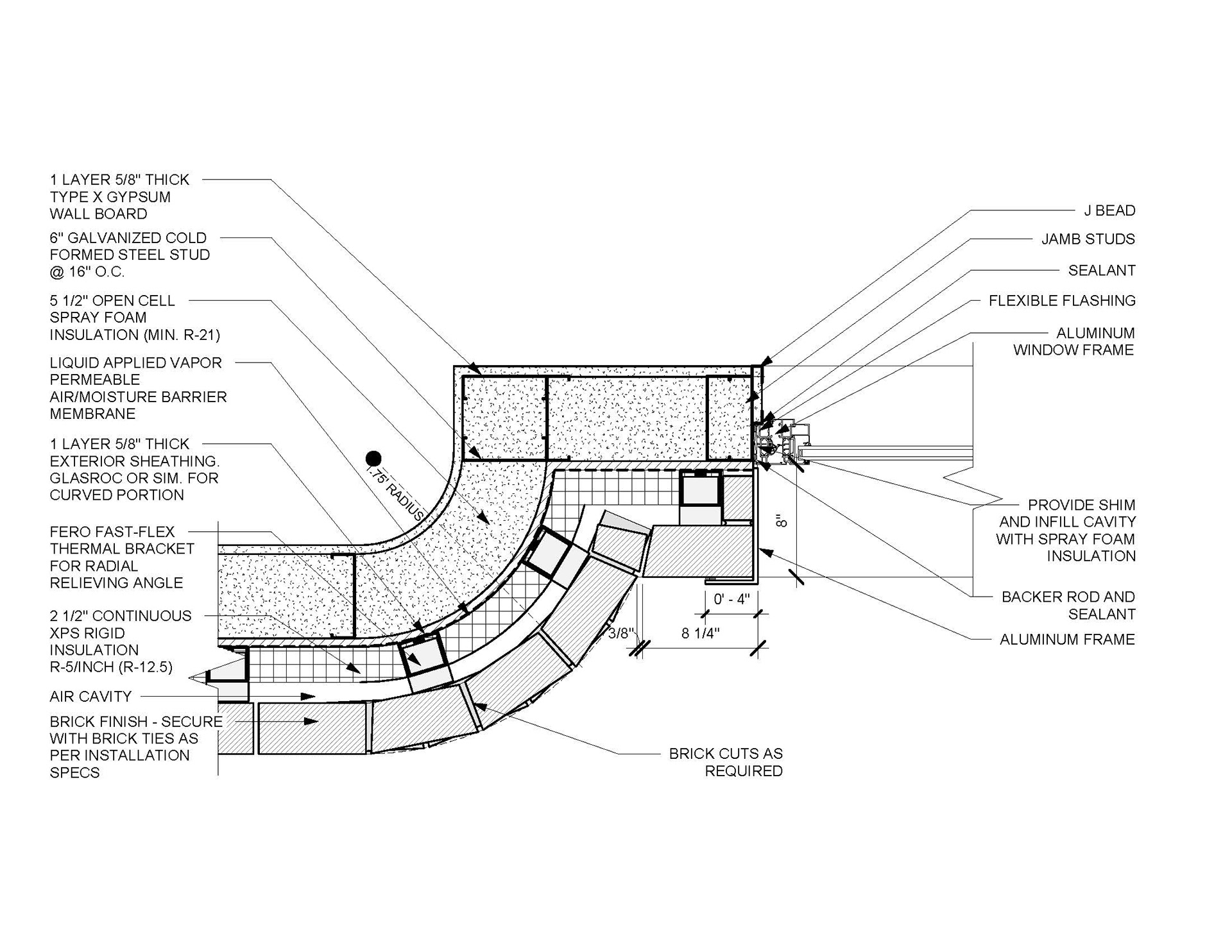
Curved Brick

Energy Compliant Curved Brick Detail